产品中心

竭诚为广大用户提供优质的产品和优良的服务

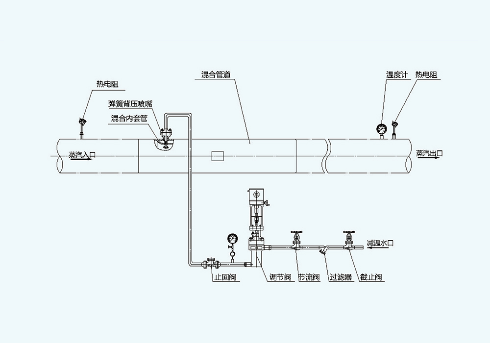
减温装置(单喷嘴)

详细介绍


WY系列减温减压装置是将高参数的蒸汽调节到所需的压力和温度的重要装置。其主要应用于:

*发电厂锅炉一般生产高温和高压蒸汽,通过减温减压装置将适合的压力和温度的蒸汽输送给汽轮机组,提供高效率能源以便驱动发电机、泵或其他设备。

*减温减压装置的作用是将高压蒸汽/高温锅炉生产的蒸汽减压和降温至工厂所需的要求。

*蒸汽温度很精确的控制到接近饱和蒸汽,以便达到最高蒸汽效率。

*在一切使用蒸汽的生产工艺流程中都会使用,通过减温减压装置可以得到合适的蒸汽。减温减压装置是高效节能环保产品,广泛用于热电厂、集中供热、食品工业、石化工业、纺织工业、橡胶工业、造纸和纸浆工业、烟草工业、制药等很多行业。


主要性能指标:

01) 进口蒸汽压力P1和温度T1

● 中温中压:P1≤3.82MPa,温度T1≤450°C 。

● 次高温次高压:P1≤5.29MPa,温度T1≤485℃ 。

● 高温高压:P1≤9.81MPa,温度T1≤540°C 。

● 高温超高压:P1≤13.7MPa,温度T1≤540℃ 。

● 高温亚临界: P1≤16.7MPa,温度T1≤540℃ 。


02) 出口蒸汽流量Q

减温减压装置出口流量Q的变化范围为10%~100%,在此范围内调节比较理想。若有特殊要求可与本公司协商另定。


03) 出口蒸汽压力P2

出口蒸汽压力P2的调节精度不低于2.5级。压力的偏差范围:P2±0.04MPa;


04) 出口蒸汽温度T2

出口蒸汽温度T2的调节精度不低于2.5级。温度的偏差范围:T2±4°C;


05) 噪音

装置正常运行时,在减压阀下游一米,同时距管壁一米处测其噪音,噪音音级应不大于85分贝